賃貸条件
| 賃料 | 1,380,000円(税別) |
|---|---|
| 坪単価 | 6,674円 |
| 敷金(保証金) | 5ヶ月 |
| 礼金 | 1ヶ月 |
| 使用開始日 | 即日 |
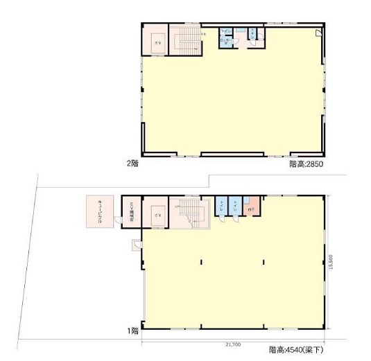
物件概要
| 物件所在地 | 神奈川県川崎市幸区南加瀬5丁目 |
|---|---|
| 建物床面積 | 206.79坪(683.60m2) |
| 敷地面積 | - |
| 建物面積内訳 | - |
| 建物構造 |
鉄骨造 |
| 軒高 | - |
| 用途地域 | 第一種住居地域 |
| 前面道路幅員 | 8.00m |
| 建物階数 |
2階建 |
| 備考 | トイレ エレベーター |
周辺地図
※周辺地図ですので、実際の所在地とは異なる場合がございます。


