賃貸条件
| 賃料 | 550,000円(税別) |
|---|---|
| 坪単価 | 8,936円 |
| 敷金(保証金) | 4ヶ月 |
| 礼金 | 2ヶ月 |
| 使用開始日 | 即日 |
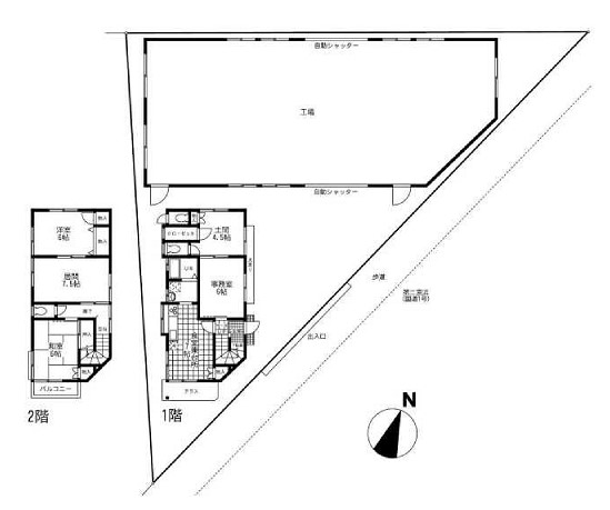
物件概要
| 物件所在地 | 神奈川県川崎市幸区都町 |
|---|---|
| 建物床面積 | 61.55坪(203.47m2) |
| 敷地面積 | 69.99坪(231.37m2) |
| 建物面積内訳 |
工場:34.03坪 |
| 建物構造 | |
| 軒高 | - |
| 用途地域 | 近隣商業地域 |
| 前面道路幅員 | 23.00m |
| 建物階数 |
平家建 |
| 備考 | 全2棟 別棟住居・2階建事務所27.52坪(91㎡)含む |
周辺地図
※周辺地図ですので、実際の所在地とは異なる場合がございます。


