賃貸条件
| 賃料 | 570,000円(税別) |
|---|---|
| 坪単価 | 5,235円 |
| 敷金(保証金) | 3ヶ月 |
| 礼金 | 1ヶ月 |
| 使用開始日 | 即日 |
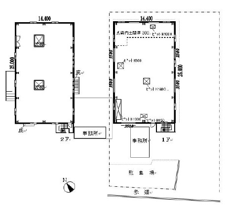
物件概要
| 物件所在地 | 神奈川県川崎市川崎区塩浜3丁目 |
|---|---|
| 建物床面積 | 108.90坪(360.00m2) |
| 敷地面積 | 393.85坪(1,301.99m2) |
| 建物面積内訳 | - |
| 建物構造 |
鉄骨造 |
| 軒高 | - |
| 用途地域 | 工業地域 |
| 前面道路幅員 | - |
| 建物階数 |
2階建 |
| 備考 | 2階建1階部分 トイレ 事務所有 エレベーター クレーン |
周辺地図
※周辺地図ですので、実際の所在地とは異なる場合がございます。


