ホーム > 埼玉県の貸し倉庫 > 所沢・三芳エリアの貸し倉庫 > 埼玉県所沢市南永井の貸し倉庫・工場 (188.83坪)
賃貸条件
| 賃料 | 400,000円(税別) |
|---|---|
| 坪単価 | 2,119円 |
| 敷金(保証金) | 4ヶ月 |
| 礼金 | 2ヶ月 |
| 使用開始日 | 相談 |
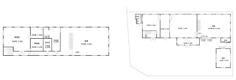
物件概要
| 物件所在地 | 埼玉県所沢市南永井 |
|---|---|
| 建物床面積 | 188.83坪(624.23m2) |
| 敷地面積 | 300.08坪(992.00m2) |
| 建物面積内訳 | - |
| 建物構造 |
鉄骨造 |
| 軒高 | - |
| 用途地域 | - |
| 前面道路幅員 | - |
| 建物階数 |
2階建 |
| 備考 | トイレ |
周辺地図
※周辺地図ですので、実際の所在地とは異なる場合がございます。


