ホーム > 埼玉県の貸し倉庫 > 所沢・三芳エリアの貸し倉庫 > 埼玉県所沢市上山口の貸し倉庫・工場 (120.24坪)
賃貸条件
| 賃料 | 350,000円(税別) |
|---|---|
| 坪単価 | 2,911円 |
| 敷金(保証金) | 4ヶ月 |
| 礼金 | 1ヶ月 |
| 使用開始日 | 即日 |
物件概要
| 物件所在地 | 埼玉県所沢市上山口 |
|---|---|
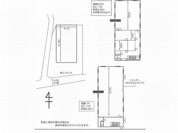
| 建物床面積 | 120.24坪(397.49m2) |
| 敷地面積 | 173.58坪(573.82m2) |
| 建物面積内訳 |
倉庫:60.11坪 事務所:60.11坪 |
| 建物構造 |
鉄骨造 |
| 軒高 | 3.40m |
| 用途地域 | 市街化調整区域 |
| 前面道路幅員 | 6.00m |
| 建物階数 |
2階建 |
| 備考 | トイレ シャッター(W=3m×H=2.7m) |
周辺地図
※周辺地図ですので、実際の所在地とは異なる場合がございます。


