ホーム > 埼玉県の貸し倉庫 > 所沢・三芳エリアの貸し倉庫 > 埼玉県所沢市東所沢4丁目の貸し倉庫・工場 (357.49坪)
賃貸条件
| 賃料 | 1,350,000円(税別) |
|---|---|
| 坪単価 | 3,777円 |
| 敷金(保証金) | 3ヶ月 |
| 礼金 | 1ヶ月 |
| 使用開始日 | 即日 |
物件概要
| 物件所在地 | 埼玉県所沢市東所沢4丁目 |
|---|---|
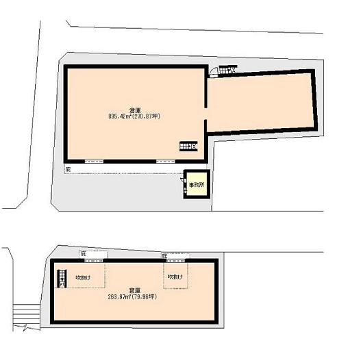
| 建物床面積 | 357.49坪(1,181.79m2) |
| 敷地面積 | 592.90坪(1,960.00m2) |
| 建物面積内訳 |
倉庫:270.87坪 79.96坪 事務所:6.86坪 |
| 建物構造 |
鉄骨造 |
| 軒高 | - |
| 用途地域 | 第一種中高層住居専用地域 |
| 前面道路幅員 | - |
| 建物階数 |
平家建 |
| 備考 | 2棟一括貸し |
周辺地図
※周辺地図ですので、実際の所在地とは異なる場合がございます。


