ホーム > 東京都の貸し倉庫 > 八王子・日野・立川エリアの貸し倉庫 > 東京都立川市砂川町5丁目の貸し倉庫・工場 (58.86坪)
賃貸条件
| 賃料 | 590,910円(税別) |
|---|---|
| 坪単価 | 10,040円 |
| 敷金(保証金) | 3ヶ月 |
| 礼金 | 1ヶ月 |
| 使用開始日 | 即日 |
物件概要
| 物件所在地 | 東京都立川市砂川町5丁目 |
|---|---|
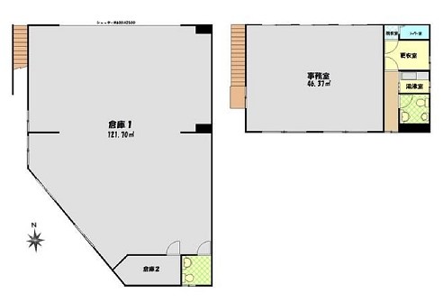
| 建物床面積 | 58.86坪(194.58m2) |
| 敷地面積 | - |
| 建物面積内訳 |
倉庫:36.81坪 事務所:14.02坪 |
| 建物構造 |
鉄骨造 |
| 軒高 | - |
| 用途地域 | - |
| 前面道路幅員 | - |
| 建物階数 |
2階建 |
| 備考 | トイレ |
周辺地図
※周辺地図ですので、実際の所在地とは異なる場合がございます。


