ホーム > 東京都の貸し倉庫 > 国立・府中・調布・国分寺エリアの貸し倉庫 > 東京都町田市野津田町の貸し倉庫・工場 (185.71坪)
賃貸条件
| 賃料 | 460,000円(税別) |
|---|---|
| 坪単価 | 2,477円 |
| 敷金(保証金) | 3ヶ月 |
| 礼金 | 1ヶ月 |
| 使用開始日 | 相談 |
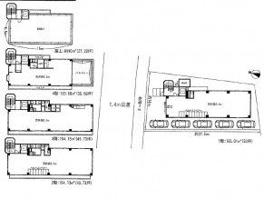
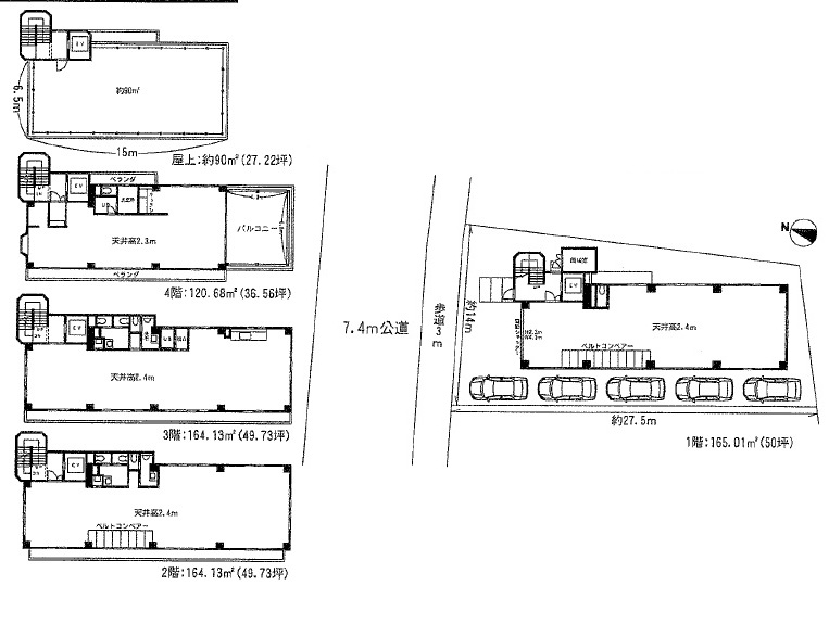
物件概要
| 物件所在地 | 東京都町田市野津田町 |
|---|---|
| 建物床面積 | 185.71坪(613.92m2) |
| 敷地面積 | - |
| 建物面積内訳 |
倉庫:1階50坪、2・3階各49.73坪、4階36.56坪 |
| 建物構造 |
鉄筋コンクリート造 |
| 軒高 | - |
| 用途地域 | - |
| 前面道路幅員 | 12.00m |
| 建物階数 |
4階建 |
| 備考 | トイレ 屋上27.22坪 バイク置場 駐輪場有 更新料:新賃料1ヶ月 |
周辺地図
※周辺地図ですので、実際の所在地とは異なる場合がございます。


