ホーム > 埼玉県の貸し倉庫 > 和光・朝霞・志木エリアの貸し倉庫 > 埼玉県新座市野火止3丁目の貸し倉庫・工場 (390.07坪)
賃貸条件
| 賃料 | 1,637,963円(税別) |
|---|---|
| 坪単価 | 4,200円 |
| 敷金(保証金) | 3ヶ月 |
| 礼金 | 1ヶ月 |
| 使用開始日 | 即日 |
物件概要
| 物件所在地 | 埼玉県新座市野火止3丁目 |
|---|---|
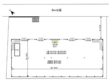
| 建物床面積 | 390.07坪(1,289.49m2) |
| 敷地面積 | - |
| 建物面積内訳 |
倉庫:1・2階各195.03坪 |
| 建物構造 |
鉄骨造 |
| 軒高 | 4.60m |
| 用途地域 | - |
| 前面道路幅員 | 8.00m |
| 建物階数 |
2階建 |
| 備考 | 男女別トイレ 浄化槽 クレーン リフト(1t未満) 動力 梁下高さ:1階4.6m 2階3.4m |
周辺地図
※周辺地図ですので、実際の所在地とは異なる場合がございます。


