賃貸条件
| 賃料 | 2,184,000円(税別) |
|---|---|
| 坪単価 | 3,501円 |
| 敷金(保証金) | 4ヶ月 |
| 礼金 | 1ヶ月 |
| 使用開始日 | 即日 |
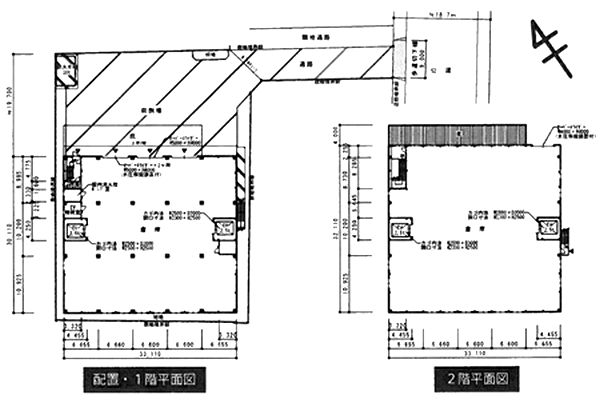
物件概要
| 物件所在地 | 神奈川県秦野市菩提 |
|---|---|
| 建物床面積 | 623.99坪(2,062.78m2) |
| 敷地面積 | 633.99坪(2,095.84m2) |
| 建物面積内訳 |
倉庫:623.99坪 |
| 建物構造 |
鉄骨造 |
| 軒高 | - |
| 用途地域 | 工業専用地域 |
| 前面道路幅員 | 18.70m |
| 建物階数 |
2階建 |
| 備考 | トイレ エレベーター 天井高:1階5.6m 2階5m |
周辺地図
※周辺地図ですので、実際の所在地とは異なる場合がございます。


