ホーム > 千葉県の貸し倉庫 > 習志野・船橋・八千代エリアの貸し倉庫 > 千葉県船橋市高瀬町の貸し倉庫・工場 (199.04坪)
賃貸条件
| 賃料 | 1,400,000円(税別) |
|---|---|
| 坪単価 | 7,034円 |
| 敷金(保証金) | 3ヶ月 |
| 礼金 | 1ヶ月 |
| 使用開始日 | 相談 |
物件概要
| 物件所在地 | 千葉県船橋市高瀬町 |
|---|---|
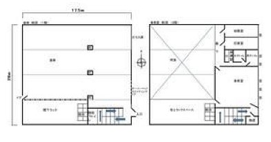
| 建物床面積 | 199.04坪(657.98m2) |
| 敷地面積 | - |
| 建物面積内訳 | - |
| 建物構造 |
鉄筋コンクリート造 |
| 軒高 | - |
| 用途地域 | 準工業地域 |
| 前面道路幅員 | - |
| 建物階数 |
2階建 |
| 備考 | A2 トイレ 天井高7.5m 大型車進入可 |
周辺地図
※周辺地図ですので、実際の所在地とは異なる場合がございます。


