ホーム > 東京都の貸し倉庫 > 大田・品川・目黒エリアの貸し倉庫 > 東京都世田谷区玉川田園調布2丁目の貸し倉庫・工場 (112.39坪)
賃貸条件
| 賃料 | 2,090,000円(税別) |
|---|---|
| 坪単価 | 18,596円 |
| 敷金(保証金) | 10ヶ月 |
| 礼金 | 1ヶ月 |
| 使用開始日 | 即日 |
物件概要
| 物件所在地 | 東京都世田谷区玉川田園調布2丁目 |
|---|---|
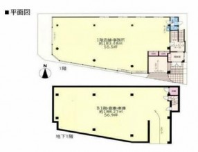
| 建物床面積 | 112.39坪(371.54m2) |
| 敷地面積 | - |
| 建物面積内訳 |
倉庫:地下1階56.90坪 1階55.50坪 |
| 建物構造 |
鉄筋コンクリート造 |
| 軒高 | - |
| 用途地域 | 第二種住居地域 |
| 前面道路幅員 | - |
| 建物階数 |
4階建 |
| 備考 | 4階建地下1階/地下1階~1階部分 トイレ2ヵ所 天井高/B1F:約2.3m、1F:約2.4m 24時間365日使用可能 大型搬入可 エアコン付き |
周辺地図
※周辺地図ですので、実際の所在地とは異なる場合がございます。


