ホーム > 東京都の貸し倉庫 > 江戸川・江東・足立・台東・葛飾エリアの貸し倉庫 > 東京都江東区潮見2丁目の貸し倉庫・工場 (312.12坪)
賃貸条件
| 賃料 | 3,150,000円(税別) |
|---|---|
| 坪単価 | 10,093円 |
| 敷金(保証金) | 4ヶ月 |
| 礼金 | 1ヶ月 |
| 使用開始日 | 即日 |
物件概要
| 物件所在地 | 東京都江東区潮見2丁目 |
|---|---|
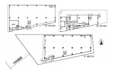
| 建物床面積 | 312.12坪(1,031.80m2) |
| 敷地面積 | - |
| 建物面積内訳 |
倉庫:1階120.62坪 2階130.52坪 事務所:3階60.97坪 |
| 建物構造 |
鉄筋コンクリート造 |
| 軒高 | - |
| 用途地域 | - |
| 前面道路幅員 | 15.00m |
| 建物階数 |
3階建 |
| 備考 | トイレ 事務所 1~2F荷物用エレベーター |
周辺地図
※周辺地図ですので、実際の所在地とは異なる場合がございます。


