ホーム > 埼玉県の貸し倉庫 > 川越・鶴ヶ島・東松山エリア の貸し倉庫 > 埼玉県川越市南大塚1丁目の貸し倉庫・工場 (232.27坪)
賃貸条件
| 賃料 | 950,000円(税別) |
|---|---|
| 坪単価 | 4,091円 |
| 敷金(保証金) | 3ヶ月 |
| 礼金 | 1ヶ月 |
| 使用開始日 | 即日 |
物件概要
| 物件所在地 | 埼玉県川越市南大塚1丁目 |
|---|---|
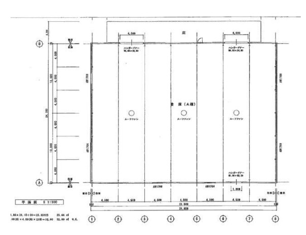
| 建物床面積 | 232.27坪(767.84m2) |
| 敷地面積 | - |
| 建物面積内訳 |
倉庫:232.27坪 |
| 建物構造 |
鉄骨造 |
| 軒高 | 2.50m |
| 用途地域 | - |
| 前面道路幅員 | - |
| 建物階数 |
平家建 |
| 備考 | 大型車進入可 土・日祝利用可能 電動シャッター |
周辺地図
※周辺地図ですので、実際の所在地とは異なる場合がございます。


