ホーム > 埼玉県の貸し倉庫 > 加須・久喜・羽生エリアの貸し倉庫 > 埼玉県加須市花崎1丁目の貸し倉庫・工場 (201.49坪)
賃貸条件
| 賃料 | 700,000円(税別) |
|---|---|
| 坪単価 | 3,475円 |
| 敷金(保証金) | 4ヶ月 |
| 礼金 | 1ヶ月 |
| 使用開始日 | 相談 |
物件概要
| 物件所在地 | 埼玉県加須市花崎1丁目 |
|---|---|
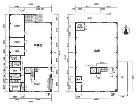
| 建物床面積 | 201.49坪(666.08m2) |
| 敷地面積 | 288.88坪(954.98m2) |
| 建物面積内訳 | - |
| 建物構造 |
鉄骨造 |
| 軒高 | - |
| 用途地域 | 第一種住居地域 |
| 前面道路幅員 | 9.00m |
| 建物階数 |
2階建 |
| 備考 | トイレ |
周辺地図
※周辺地図ですので、実際の所在地とは異なる場合がございます。


