ホーム > 埼玉県の貸し倉庫 > 加須・久喜・羽生エリアの貸し倉庫 > 埼玉県杉戸町本郷の貸し倉庫・工場 (670.12坪)
賃貸条件
| 賃料 | 2,345,364円(税別) |
|---|---|
| 坪単価 | 3,500円 |
| 敷金(保証金) | 4ヶ月 |
| 礼金 | 1ヶ月 |
| 使用開始日 | 即日 |
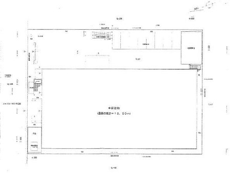
物件概要
| 物件所在地 | 埼玉県杉戸町本郷 |
|---|---|
| 建物床面積 | 670.12坪(2,215.28m2) |
| 敷地面積 | 566.54坪(1,872.86m2) |
| 建物面積内訳 |
倉庫:1・3階各320.09坪 2階29.93坪 |
| 建物構造 |
鉄骨造 |
| 軒高 | - |
| 用途地域 | 工業専用地域 |
| 前面道路幅員 | - |
| 建物階数 |
3階建 |
| 備考 | トイレ エレベーター |
周辺地図
※周辺地図ですので、実際の所在地とは異なる場合がございます。


