ホーム > 埼玉県の貸し倉庫 > 草加・三郷・八潮エリア の貸し倉庫 > 埼玉県三郷市早稲田3丁目の貸し倉庫・工場 (65.61坪)
賃貸条件
| 賃料 | 300,000円(税別) |
|---|---|
| 坪単価 | 4,573円 |
| 敷金(保証金) | 4ヶ月 |
| 礼金 | 1ヶ月 |
| 使用開始日 | 相談 |
物件概要
| 物件所在地 | 埼玉県三郷市早稲田3丁目 |
|---|---|
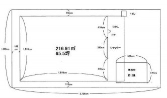
| 建物床面積 | 65.61坪(216.89m2) |
| 敷地面積 | 118.13坪(390.51m2) |
| 建物面積内訳 |
倉庫:65.61坪 事務所:約12畳 |
| 建物構造 |
鉄骨造 |
| 軒高 | - |
| 用途地域 | 第二種住居地域 |
| 前面道路幅員 | - |
| 建物階数 |
平家建 |
| 備考 | トイレ 天井高5.7m |
周辺地図
※周辺地図ですので、実際の所在地とは異なる場合がございます。


