ホーム > 埼玉県の貸し倉庫 > 草加・三郷・八潮エリア の貸し倉庫 > 埼玉県三郷市新和4丁目の貸し倉庫・工場 (425.92坪)
賃貸条件
| 賃料 | 1,527,778円(税別) |
|---|---|
| 坪単価 | 3,588円 |
| 敷金(保証金) | 3ヶ月 |
| 礼金 | 1ヶ月 |
| 使用開始日 | 相談 |
物件概要
| 物件所在地 | 埼玉県三郷市新和4丁目 |
|---|---|
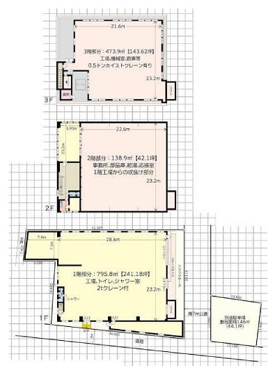
| 建物床面積 | 425.92坪(1,408.00m2) |
| 敷地面積 | 290.72坪(961.06m2) |
| 建物面積内訳 |
工場:1階241.18坪 3階143.62坪 事務所:2階42.1坪 |
| 建物構造 |
鉄骨造 |
| 軒高 | - |
| 用途地域 | 準工業地域 |
| 前面道路幅員 | 6.00m |
| 建物階数 |
3階建 |
| 備考 | 走行クレーン2t1基 トイレ 1階天井高7.4m 2階(中2階)事務所42坪・吹抜け 別途44坪駐車スペース有 |
周辺地図
※周辺地図ですので、実際の所在地とは異なる場合がございます。


