ホーム > 埼玉県の貸し倉庫 > 戸田・川口エリアの貸し倉庫 > 埼玉県川口市新堀の貸し倉庫・工場 (164.48坪)
賃貸条件
| 賃料 | 857,420円(税別) |
|---|---|
| 坪単価 | 5,213円 |
| 敷金(保証金) | 4ヶ月 |
| 礼金 | 1ヶ月 |
| 使用開始日 | 即日 |
物件概要
| 物件所在地 | 埼玉県川口市新堀 |
|---|---|
| 建物床面積 | 164.48坪(543.74m2) |
| 敷地面積 | - |
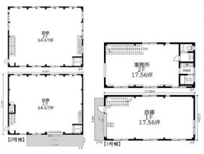
| 建物面積内訳 |
倉庫:1号棟:1階17.56坪 2号棟:1・2階各64.67坪 事務所:1号棟:2階17.56坪 |
| 建物構造 |
鉄骨造 |
| 軒高 | - |
| 用途地域 | - |
| 前面道路幅員 | - |
| 建物階数 |
2階建 |
| 備考 | トイレ リフト |
周辺地図
※周辺地図ですので、実際の所在地とは異なる場合がございます。


