ホーム > 埼玉県の貸し倉庫 > 戸田・川口エリアの貸し倉庫 > 埼玉県戸田市笹目4丁目の貸し倉庫・工場 (122.54坪)
賃貸条件
| 賃料 | 620,000円(税別) |
|---|---|
| 坪単価 | 5,060円 |
| 敷金(保証金) | 4ヶ月 |
| 礼金 | 1ヶ月 |
| 使用開始日 | 即日 |
物件概要
| 物件所在地 | 埼玉県戸田市笹目4丁目 |
|---|---|
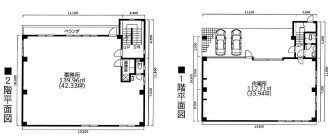
| 建物床面積 | 122.54坪(405.09m2) |
| 敷地面積 | 60.64坪(200.46m2) |
| 建物面積内訳 |
倉庫:1階33.94坪 事務所:2階42.33坪 |
| 建物構造 |
鉄骨造 |
| 軒高 | - |
| 用途地域 | 準工業地域 |
| 前面道路幅員 | 7.00m |
| 建物階数 |
3階建 |
| 備考 | トイレ |
周辺地図
※周辺地図ですので、実際の所在地とは異なる場合がございます。


