ホーム > 埼玉県の貸し倉庫 > 熊谷・行田・秩父エリアの貸し倉庫 > 埼玉県本庄市児玉町児玉の貸し倉庫・工場 (403.11坪)
賃貸条件
| 賃料 | 750,000円(税別) |
|---|---|
| 坪単価 | 1,861円 |
| 敷金(保証金) | 4ヶ月 |
| 礼金 | 1ヶ月 |
| 使用開始日 | 相談 |
物件概要
| 物件所在地 | 埼玉県本庄市児玉町児玉 |
|---|---|
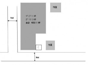
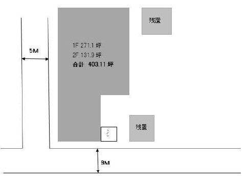
| 建物床面積 | 403.11坪(1,332.60m2) |
| 敷地面積 | 1164.91坪(3,850.95m2) |
| 建物面積内訳 |
工場:1階271.1坪 2階131.9坪 |
| 建物構造 |
鉄骨造 |
| 軒高 | - |
| 用途地域 | - |
| 前面道路幅員 | 9.00m |
| 建物階数 |
2階建 |
| 備考 | 敷地内事務所有 男女別トイレ リフト キューピクル |
周辺地図
※周辺地図ですので、実際の所在地とは異なる場合がございます。


