ホーム > 埼玉県の貸し倉庫 > さいたま市エリアの貸し倉庫 > 埼玉県さいたま市西区飯田の貸し倉庫・工場 (145.37坪)
賃貸条件
| 賃料 | 450,000円(税別) |
|---|---|
| 坪単価 | 3,096円 |
| 敷金(保証金) | 3ヶ月 |
| 礼金 | 1ヶ月 |
| 使用開始日 | 即日 |
物件概要
| 物件所在地 | 埼玉県さいたま市西区飯田 |
|---|---|
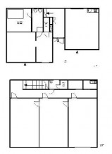
| 建物床面積 | 145.37坪(480.56m2) |
| 敷地面積 | 250.99坪(829.72m2) |
| 建物面積内訳 |
倉庫:101.79坪 事務所:43.58坪 |
| 建物構造 |
鉄骨造 |
| 軒高 | - |
| 用途地域 | - |
| 前面道路幅員 | - |
| 建物階数 |
平家建 |
| 備考 | クレーン |
周辺地図
※周辺地図ですので、実際の所在地とは異なる場合がございます。


