ホーム > 埼玉県の貸し倉庫 > さいたま市エリアの貸し倉庫 > 埼玉県さいたま市岩槻区府内1丁目の貸し倉庫・工場 (380.43坪)
賃貸条件
| 賃料 | 700,000円(税別) |
|---|---|
| 坪単価 | 1,841円 |
| 敷金(保証金) | 3ヶ月 |
| 礼金 | 1ヶ月 |
| 使用開始日 | 相談 |
物件概要
| 物件所在地 | 埼玉県さいたま市岩槻区府内1丁目 |
|---|---|
| 建物床面積 | 380.43坪(1,257.62m2) |
| 敷地面積 | - |
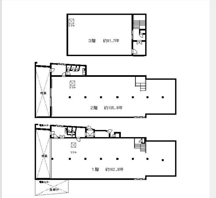
| 建物面積内訳 |
倉庫:1階約162.8坪 2階約135.9坪 3階約81.7坪 |
| 建物構造 |
鉄骨造 |
| 軒高 | - |
| 用途地域 | - |
| 前面道路幅員 | - |
| 建物階数 |
3階建 |
| 備考 | トイレ クレーン リフト エアコン残地物扱い |
周辺地図
※周辺地図ですので、実際の所在地とは異なる場合がございます。


