賃貸条件
| 賃料 | 1,672,000円(税別) |
|---|---|
| 坪単価 | 4,000円 |
| 敷金(保証金) | 4ヶ月 |
| 礼金 | 1ヶ月 |
| 使用開始日 | 即日 |
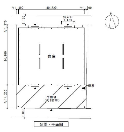
物件概要
| 物件所在地 | 神奈川県相模原市緑区橋本台1丁目 |
|---|---|
| 建物床面積 | 418.00坪(1,381.82m2) |
| 敷地面積 | 640.99坪(2,118.98m2) |
| 建物面積内訳 | - |
| 建物構造 |
鉄骨造 |
| 軒高 | - |
| 用途地域 | 工業地域 |
| 前面道路幅員 | 6.00m |
| 建物階数 |
平家建 |
| 備考 | - |
周辺地図
※周辺地図ですので、実際の所在地とは異なる場合がございます。


