賃貸条件
| 賃料 | 650,000円(税別) |
|---|---|
| 坪単価 | 3,390円 |
| 敷金(保証金) | 3ヶ月 |
| 礼金 | 1ヶ月 |
| 使用開始日 | 即日 |
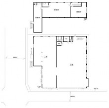
物件概要
| 物件所在地 | 神奈川県厚木市妻田北2丁目 |
|---|---|
| 建物床面積 | 191.78坪(633.98m2) |
| 敷地面積 | 218.69坪(722.94m2) |
| 建物面積内訳 |
倉庫:1階142.94坪 事務所:48.85坪 |
| 建物構造 |
鉄骨造 |
| 軒高 | - |
| 用途地域 | 工業地域 |
| 前面道路幅員 | 8.00m |
| 建物階数 |
平家建 |
| 備考 | トイレ |
周辺地図
※周辺地図ですので、実際の所在地とは異なる場合がございます。


