賃貸条件
| 賃料 | 2,460,463円(税別) |
|---|---|
| 坪単価 | 3,500円 |
| 敷金(保証金) | 4ヶ月 |
| 礼金 | 1ヶ月 |
| 使用開始日 | 相談 |
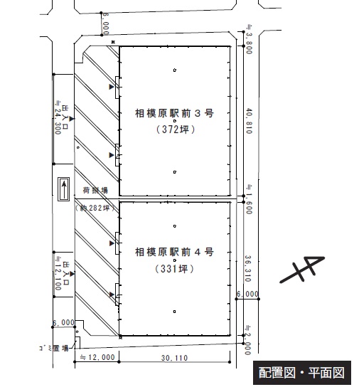
物件概要
| 物件所在地 | 神奈川県相模原市中央区相模原6丁目 |
|---|---|
| 建物床面積 | 702.99坪(2,323.94m2) |
| 敷地面積 | - |
| 建物面積内訳 |
倉庫:3号:372坪 4号:331坪 |
| 建物構造 |
鉄骨造 |
| 軒高 | - |
| 用途地域 | 近隣商業地域 |
| 前面道路幅員 | 6.00m |
| 建物階数 |
平家建 |
| 備考 | トイレ |
周辺地図
※周辺地図ですので、実際の所在地とは異なる場合がございます。


