賃貸条件
| 賃料 | 755,926円(税別) |
|---|---|
| 坪単価 | 3,600円 |
| 敷金(保証金) | 4ヶ月 |
| 礼金 | 1ヶ月 |
| 使用開始日 | 即日 |
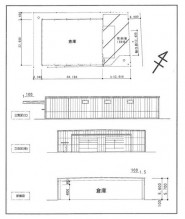
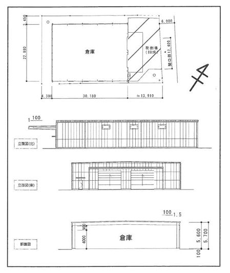
物件概要
| 物件所在地 | 神奈川県相模原市緑区田名 |
|---|---|
| 建物床面積 | 210.00坪(694.22m2) |
| 敷地面積 | 392.00坪(1,295.87m2) |
| 建物面積内訳 | - |
| 建物構造 |
鉄骨造 |
| 軒高 | - |
| 用途地域 | 第二種中高層住居専用地域 |
| 前面道路幅員 | - |
| 建物階数 |
平家建 |
| 備考 | - |
周辺地図
※周辺地図ですので、実際の所在地とは異なる場合がございます。


