ホーム > 千葉県の貸し倉庫 > 市川・浦安エリアの貸し倉庫 > 千葉県市川市相之川2丁目の貸し倉庫・工場 (168.41坪)
賃貸条件
| 賃料 | 842,038円(税別) |
|---|---|
| 坪単価 | 5,000円 |
| 敷金(保証金) | 4ヶ月 |
| 礼金 | 1ヶ月 |
| 使用開始日 | 即日 |
物件概要
| 物件所在地 | 千葉県市川市相之川2丁目 |
|---|---|
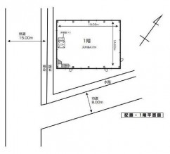
| 建物床面積 | 168.41坪(556.73m2) |
| 敷地面積 | 158.16坪(522.84m2) |
| 建物面積内訳 | - |
| 建物構造 |
鉄骨造 |
| 軒高 | - |
| 用途地域 | 第二種住居地域 |
| 前面道路幅員 | 8.00m |
| 建物階数 |
2階建 |
| 備考 | トイレ リフト 天井高4.2m |
周辺地図
※周辺地図ですので、実際の所在地とは異なる場合がございます。


