ホーム > 千葉県の貸し倉庫 > 松戸・我孫子・柏エリアの貸し倉庫 > 千葉県野田市山崎の貸し倉庫・工場 (300.99坪)
賃貸条件
| 賃料 | 960,000円(税別) |
|---|---|
| 坪単価 | 3,190円 |
| 敷金(保証金) | 4ヶ月 |
| 礼金 | 1ヶ月 |
| 使用開始日 | 即日 |
物件概要
| 物件所在地 | 千葉県野田市山崎 |
|---|---|
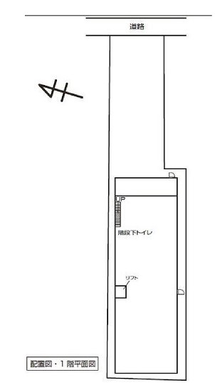
| 建物床面積 | 300.99坪(995.01m2) |
| 敷地面積 | - |
| 建物面積内訳 |
倉庫:300.99坪 |
| 建物構造 |
鉄骨造 |
| 軒高 | - |
| 用途地域 | 工業地域 |
| 前面道路幅員 | - |
| 建物階数 |
2階建 |
| 備考 | トイレ 高床式50cm リフト2t1基 |
周辺地図
※周辺地図ですので、実際の所在地とは異なる場合がございます。


